Landon Carpenter 



Work
Practice
Contact



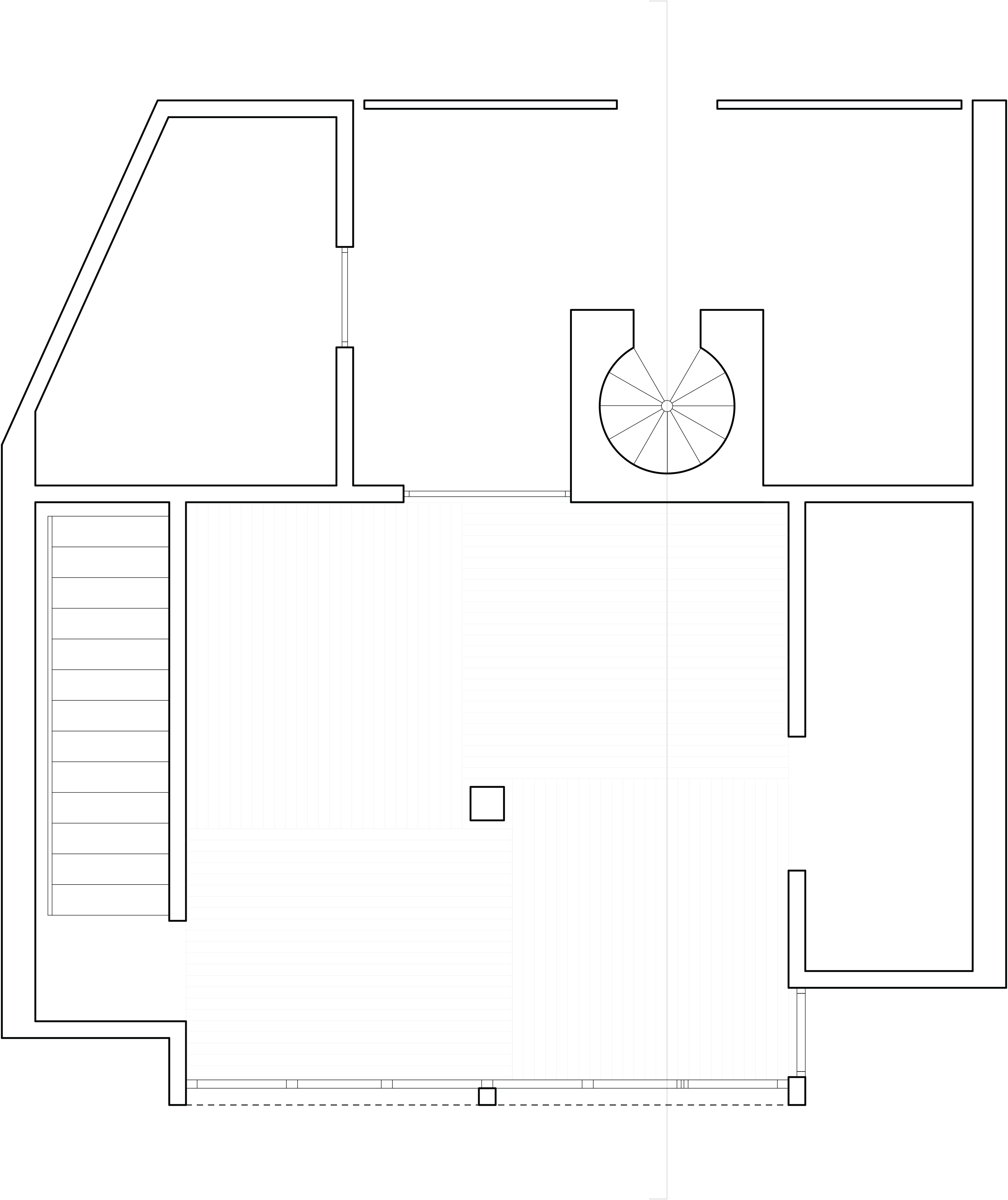
House with Two Centers


Fall 2018 | Princeton University
Studio Critics: Michael Meredith and Erin Besler